Paris 17ème - Batignolles - Appartement familial de 83m2

Paris (75017)
Réf : 180

Situé dans le quartier emblématique des Batignolles, rue de la Condamine, nous vous proposons cet appartement familial de 83m2, situé dans une copropriété récente (1972) parfaitement entretenue.

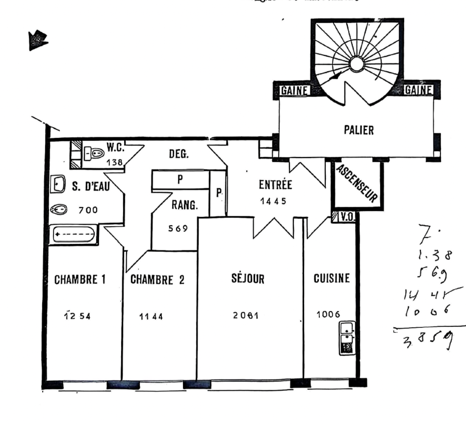
Au 2ème étage par ascenseur, il est composé d'une entrée, d'un séjour avec cuisine attenante (cuisine ouverte possible), de 2 chambres, de nombreux rangements et dressings, d'une salle de bains, wc séparé.

Une cave en sous-sol.

Au calme, à deux pas des commerces, dans un esprit "village" typique des Batignolles.

Attention, des travaux de modernisation sont à prévoir !


Les informations sur les risques auxquels ce bien est exposé sont disponibles sur le site Géorisques
Prix du bien 840 000 €
Pièce(s) 3
Chambre(s) 2

Caractéristiques du bien

Caractéristiques Valeurs
Code postal 75017
Surface habitable (m²) 83,91 m²
Surface loi Carrez (m²) 83,91 m²
Nombre de chambre(s) 2
Nombre de pièces 3
Etage 2
Ascenseur OUI
Nb de salle de bains 1
Cuisine Séparée
Type de cuisine SEMI-EQUIPEE
Mode de chauffage Fioul
Type de chauffage Radiateur
Format de chauffage Collectif
Interphone OUI
Cave OUI
Exposition Nord-Ouest
Année de construction 1972

Infos financières

Caractéristiques Valeurs
Prix de vente honoraires TTC inclus 840 000 €
Charges 417 €
Taxe foncière annuelle 1 707 €

Bilans énergétiques

DPE GES
Ce bien vous intéresse ?
Fieldset par défaut
Fieldset par défaut
Validation

* Champs obligatoires

Contacter l'agence
Validation
Les informations recueillies sur ce formulaire sont enregistrées dans un fichier informatisé par La Boite Immo agissant comme Sous-traitant du traitement pour la gestion de la clientèle/prospects de l'Agence / du Réseau qui reste Responsable du Traitement de vos Données personnelles.
La base légale du traitement repose sur l’intérêt légitime de l'Agence / du Réseau.
Elles sont conservées jusqu'à demande de suppression et sont destinées à l'Agence / au Réseau.
Conformément à la loi « informatique et libertés », vous pouvez exercer votre droit d'accès aux données vous concernant et les faire rectifier en contactant l'Agence / le Réseau.
Si vous estimez, après avoir contacté l'Agence / le Réseau, que vos droits « Informatique et Libertés » ne sont pas respectés, vous pouvez adresser une réclamation à la CNIL.
Nous vous informons de l’existence de la liste d'opposition au démarchage téléphonique « Bloctel », sur laquelle vous pouvez vous inscrire ici : https://www.bloctel.gouv.fr 
Dans le cadre de la protection des Données personnelles, nous vous invitons à ne pas inscrire de Données sensibles dans le champ de saisie libre
Ce site est protégé par reCAPTCHA, les Politiques de Confidentialité et les Conditions d'Utilisation de Google s'appliquent.